音楽史・美術史上希少なオルゴールやオートマタなど約350点を保有 音色と“カラクリ”に没入できる体験型ギャラリー「永守コレクションギャラリー」 3月7日(火) 京都・向日市にオープン

公益財団法人永守文化記念財団のプレスリリース

 ​オルゴール等の芸術文化を総合的に振興し、創造性豊かで高い感性の育成と国内の文化向上の発展に寄与することを目的とする公益財団法人 永守文化記念財団(京都府京都市)は、2023年3月7日(火)に「永守コレクションギャラリー」を京都府向日市にオープンいたします。

 「永守コレクションギャラリー」では、シリンダーオルゴール52点、ディスクオルゴール71点、オートマタ(自動カラクリ人形)92点など音楽史・美術史上希少なコレクションを347点有しております。また、本ギャラリーは、作品を展示するだけではなく、自動演奏楽器の歴史に残る100年以上昔に作られたオルゴールやオートマタの音色と“カラクリ”に没入できる、体験型施設です。世界的価値のある作品を贅沢に“ラウンジ鑑賞”できる他、通常見ることのできない“収蔵室”をガラス越しに見学でき、“マイスター工房”では、オルゴールのエンジニアによってコレクションの保守・修復や研究開発が行われており、その様子もご覧いただけます。

■ご挨拶
 2016年2月、世界に名だたるアンティークオルゴールコレクションを公開し、オルゴール文化とその関連技術の歴史的、社会的価値を紹介する施設の運営母体として永守文化記念財団を設立いたしました。
 オルゴールの音色には「繊細さ、優しさ、温かさ」があり、それを感じられる「感性」を育てることは心豊かな人材の輩出と豊かな社会の実現のために必要不可欠な要素です。オーディオはアナログからデジタルへ時代と共に変遷してきましたが、オルゴールは17世紀に誕生して以来、絶えることなく人々に愛されてきました。また、その仕組みは、回転体を廻す駆動部分、音を奏でる振動板と筐体、ギアを使ったカラクリから構成されており、オルゴールにはものづくりのエッセンスがつまっています。そしてこれらの技術は最先端テクノロジーへと進化し、産業分野の至るところで応用展開され、活用されています。
 この度開設しました永守コレクションギャラリーは、子どもから大人まで幅広い世代の感性を啓発することを目指すと共に、多くの方にお楽しみいただける施設となるよう取り組んでまいります。
公益財団法人 永守文化記念財団 代表理事 永守 重信

■概要
名称  :永守コレクションギャラリー

 

所在地 :〒617-0003 京都府向日市森本町東ノ口1番地1ニデックパーク

 

 

開館日 :毎週、月・火・木・金、開館
     祝祭日、GW、お盆期間、年末年始は休館
     その他、展示替えなどに伴う臨時休館
開館時間:10:00~16:00
     ギャラリーガイドツアー時間(各回60分)
     ◎10:30(10:30~11:30)
     ◎13:00(13:00~14:00)
     ◎15:00(15:00~16:00)
     ※ギャラリーガイドツアーは完全入れ替え制です。
     開始時間の15分前にお集まりください。
入館料 :無料
予約方法:当ギャラリーは完全予約制となっております。HPのご来館予約からご予約をお願いいたします。
     尚、複数日の予約を行うことはできませんので、ご了承ください。
URL  :https://nagamori-gallery.org/

■主なコレクション
● 作品名:ワルツを踊る少女

● 英語訳:Waltzing Doll
● カテゴリー:AUTOMATA
● 作品データ:(制作年:c.1905、ルレ・エ・ドゥカン/Roullet & Decamps(フランス/France)、サイズ:W380xH630xD290)
● 作品概要:つま先立ちをした少女が、左脚を優雅に動かしながら、台の上でゆっくりと回転する。数多くの作品を発表したフランスのオートマタ工房、ルレ・エ・ドゥカン社製。ビスクヘッドはSFBJ(フランス玩具製造協会)の作品。

● 作品名:椅子の曲芸をするピエロ

● 英語訳:Gymnast
● カテゴリー:AUTOMATA
● 作品データ:(制作年:c.2000、Christian Bailly(フランス/France)、サイズ:W540×H960×D380mm)
● 作品概要:オートマタ研究者でもあるChristian Bailly氏の作品。ピエロが椅子を用いて見事な曲芸を披露する。一連のダイナミックな動作は音楽とシンクロし、観ているものを魅了する。

● 作品名:アラード&サンドス オーケストラル・ボックス No.4755

● 英語訳:Allard & Sandoz Voix Celeste Orchestra Box Interchangeable Cylinder No.4755
● カテゴリー:MUSIC BOX(cylinder)
● 作品データ:(制作年:c.1890、アラード&サンドス/Allard & Sandoz(スイス/Switzerland)、サイズ:W1340xH1150xD770)
● 作品概要:スイス製のシリンダーオルゴール。オルゴールの櫛歯の他にベル、ドラム、カスタネット、オルガンが組み込まれた「オーケストラル・ボックス」と呼ばれる機種。専用台には交換用のシリンダーが入れられており、多くの曲を楽しむことができる。

● 作品名:カリオペ(ベル付)No.108G

● 英語訳:Kalliope No.108G with 10 Bells
● カテゴリー:MUSIC BOX(disc)
● 作品データ:(制作年:1903、カリオペ/Kalliope(ドイツ/Germany)、サイズ:W650xH260xD590)
● 作品概要:ドイツ三大オルゴールメーカーの一つ、カリオペ社製の卓上型ディスクオルゴール。同社のオルゴールにはベルが組み込まれたものが多く、こちらの機種も櫛歯の音色と共演する10個のベルの伴奏が美しい。

● 作品名:スタインウェイ・デュオ・アート

● 英語訳:Steinway Duo-Art Reproducing Piano
● カテゴリー:PIANO
● 作品データ:(制作年:1926、エオリアン/Aeolian Company(アメリカ/US)、サイズ:W1510xH1000xD1850)
● 作品概要:穴が開けられたロールペーパーを使用する自動演奏ピアノ。リプロデューシングピアノとも呼ばれる。ペダリング、アクセント、クレッシェンド、ディミヌエンド等を忠実に再現し、100年前の名ピアニストの演奏が鮮やかに蘇る。

● 作品名:レジーナ オートチェンジャー Style 31

● 英語訳:Regina Orchestral Style 31 (Sublima Corona)
● カテゴリー:MUSIC BOX(disc)
● 作品データ:(制作年:1900、レジーナ/Regina(アメリカ/US)、
サイズ:W850xH1740xD620)
● 作品概要:アメリカ最大のオルゴールメーカーであった、レジーナ社製のディスクオルゴール。本体下に入れられた12枚のディスクの中から任意の曲を楽しむことができる。連続再生、長時間演奏が特徴。

● 作品名:グラスベル・カリヨン・クロック

● 英語訳:Glass Bell Carillon Clock
● カテゴリー:MUSICAL CLOCK
● 作品データ:(制作年:c.1770、メーカー不詳(ドイツ/Germany)、サイズ:W450xH1760xD450)
● 作品概要:オルゴールの原型とも言われる、ドイツ製のカリヨン付き時計。カリヨンとは音階のあるベルのことで、大型のものは教会の鐘に用いられ、街中に時を告げた。木製円柱(シリンダー)にピンを打ち込むことで複雑な音階を記録している。

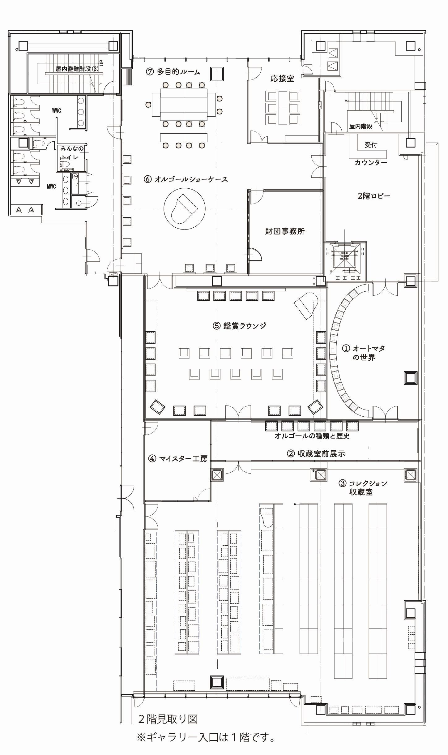
■館内施設

 

 ギャラリーの最大の特徴ともいえる「鑑賞ラウンジ」は、バラエティに富んだコレクションをコンサート形式にてお楽しみいただけます。その他、ホログラムによる、カラクリ人形の演出展示をお楽しみいただける「オートマタの世界」、伝統工芸とのコラボレーションや最先端技術を駆使した作品を紹介する「オルゴールショーケース」。「マイスター工房」では、オルゴールエンジニアがコレクションの状態を維持伝承するために日々メンテナンスを行っています。オルゴールエンジニアがアンティークオルゴールを修復する様子を間近で見学することも可能です。

 

 

 「収蔵室前展示」ではオルゴールの歴史が紹介されており、「収蔵室」は365日24時間空調管理が行われ、見せる収蔵室としてコレクションが整然と並べられています。

 多目的ルームでは随時ワークショップを開催いたします。ギャラリー館長や職員がオルゴールやオートマタの仕組みを機構の模型を使って解説します。また、参加者は実際に模型を動かし、その仕組みを体験できます。
 今後は企画展に合わせたオートマタ作りやオルゴール作りのワークショップも開催予定です。

●公益財団法人 永守文化記念財団について

名称:公益財団法人 永守文化記念財団
設立:2016(平成28)年2月5日
目的:広く一般にオルゴール等芸術文化を総合的に振興することにより、創造性豊かで高い感性を育むことに貢献し、我が国の文化の向上発展に寄与することを目的とする。
所在地:京都市南区久世殿城町338

Follow Twitter Facebook Feedly
SHARE
このページのURLとタイトルをコピー
お使いの端末ではこの機能に対応していません。
下のテキストボックスからコピーしてください。